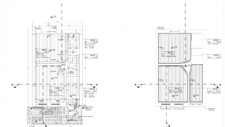
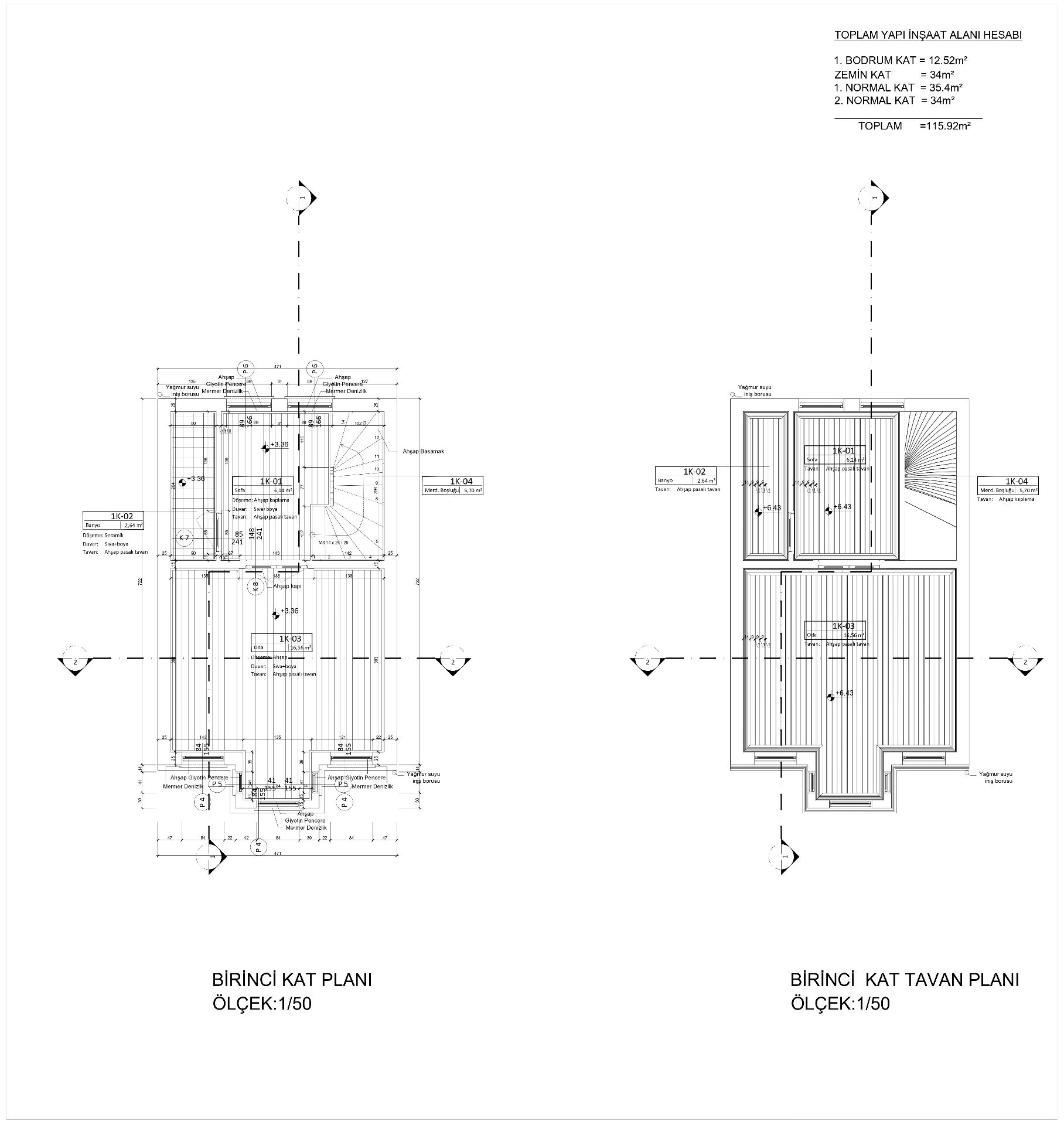
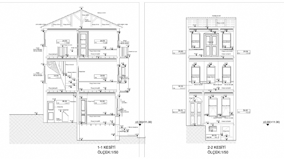
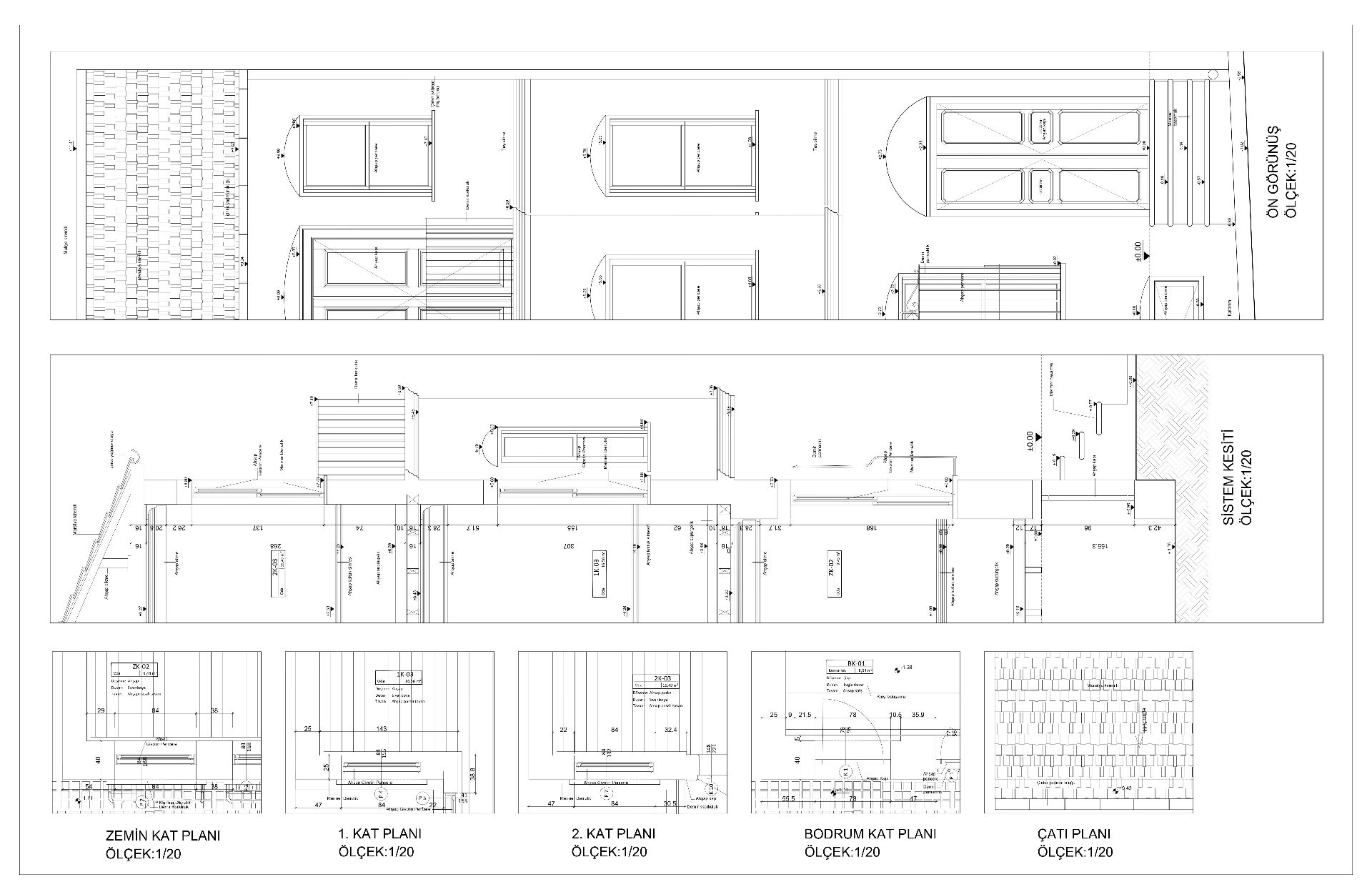
Üsküdar Kagir Konut Restorasyon Projesi, tarihi konut mimarisini özgün değerleriyle koruyarak modern yaşama kazandırmayı hedeflemektedir.

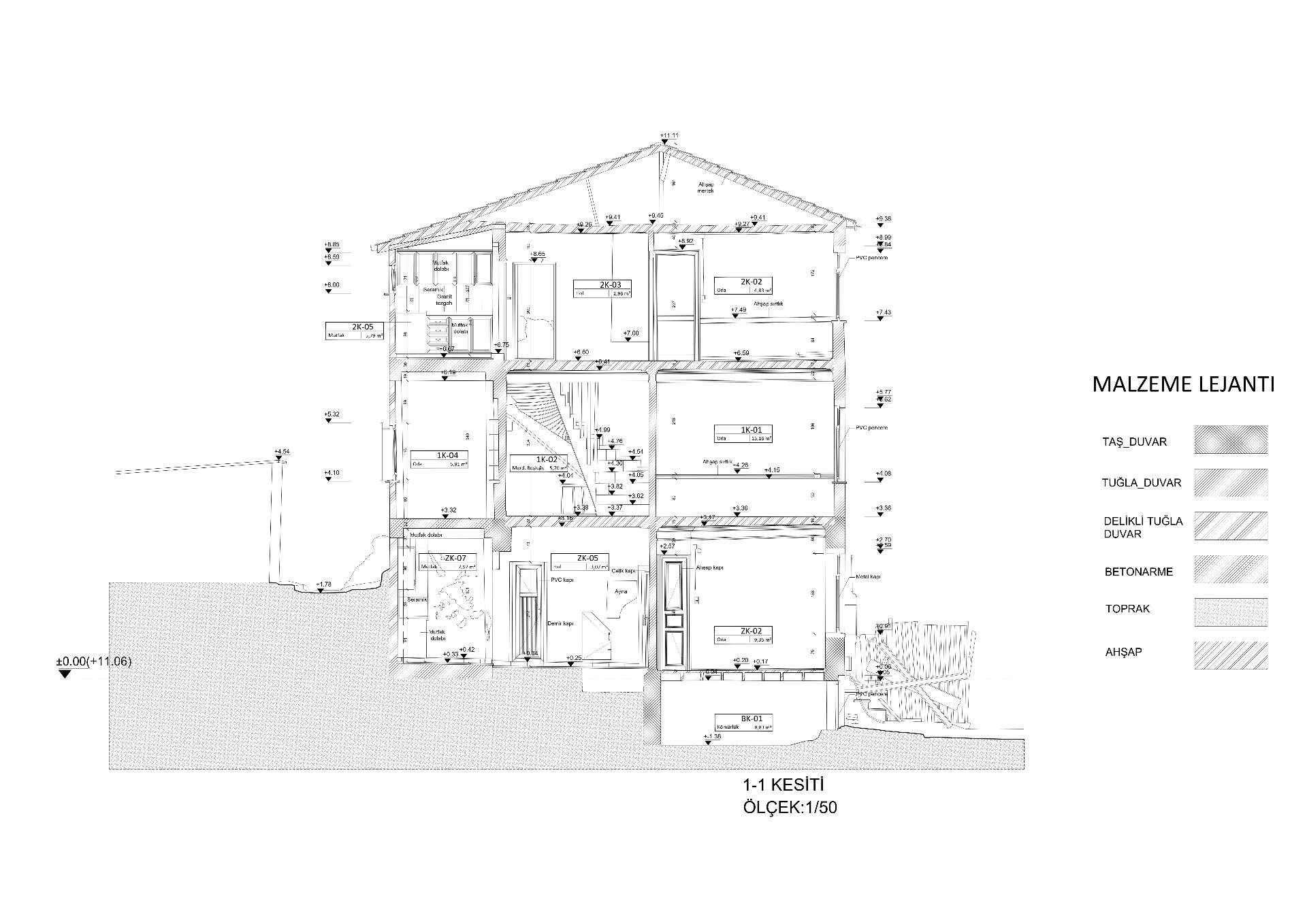
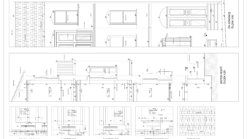
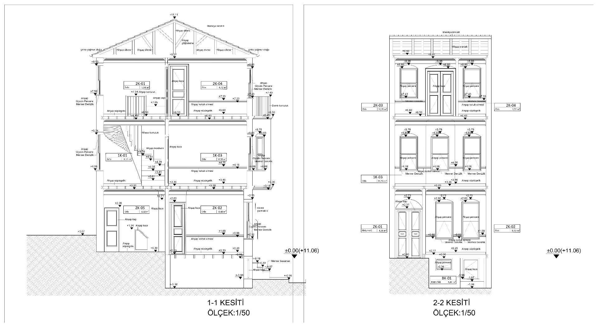
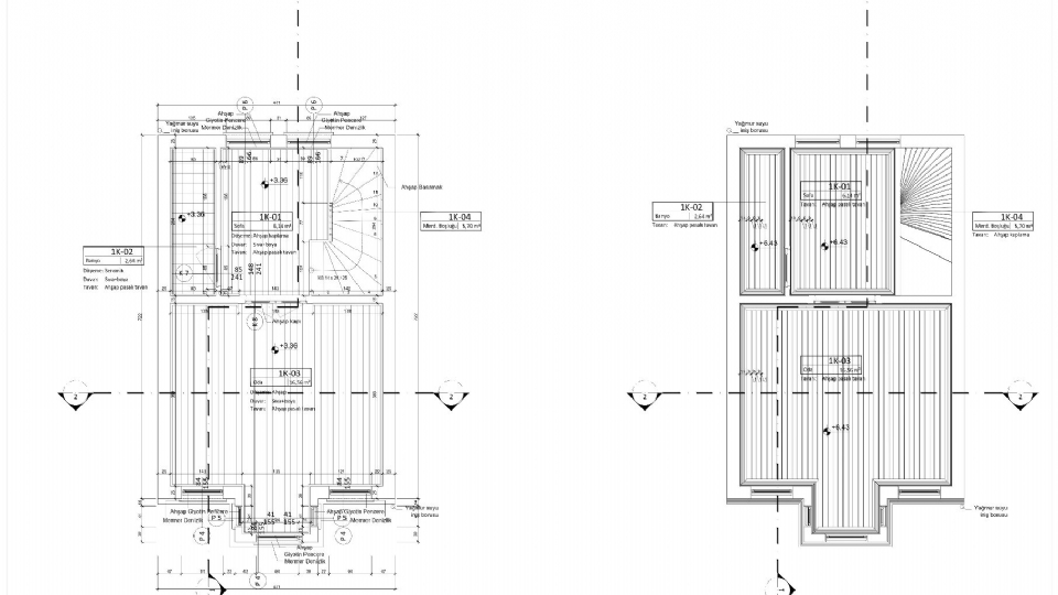
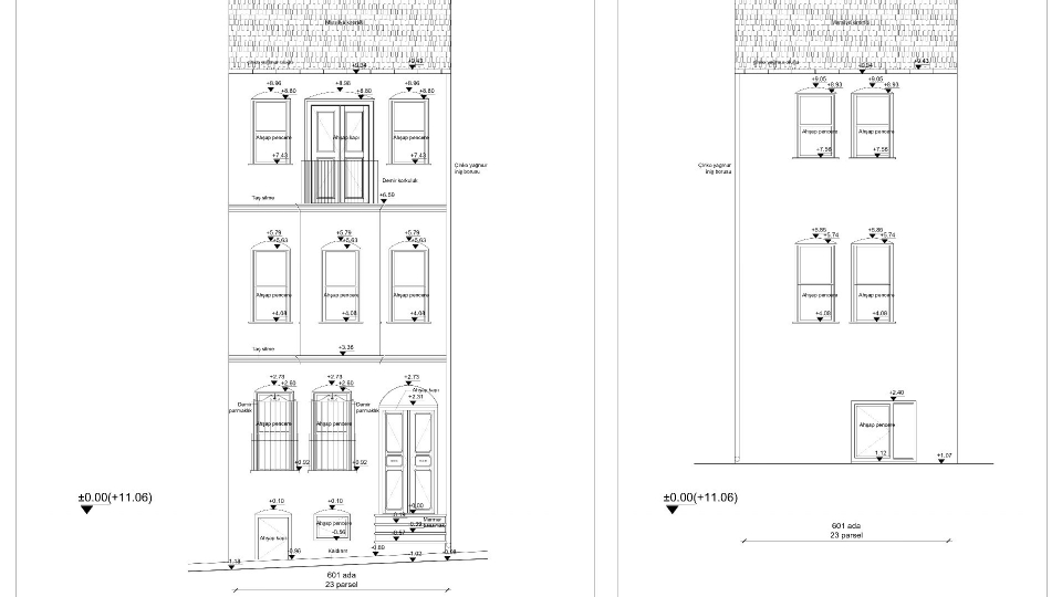
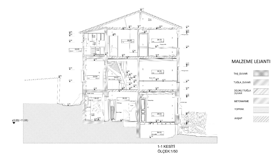
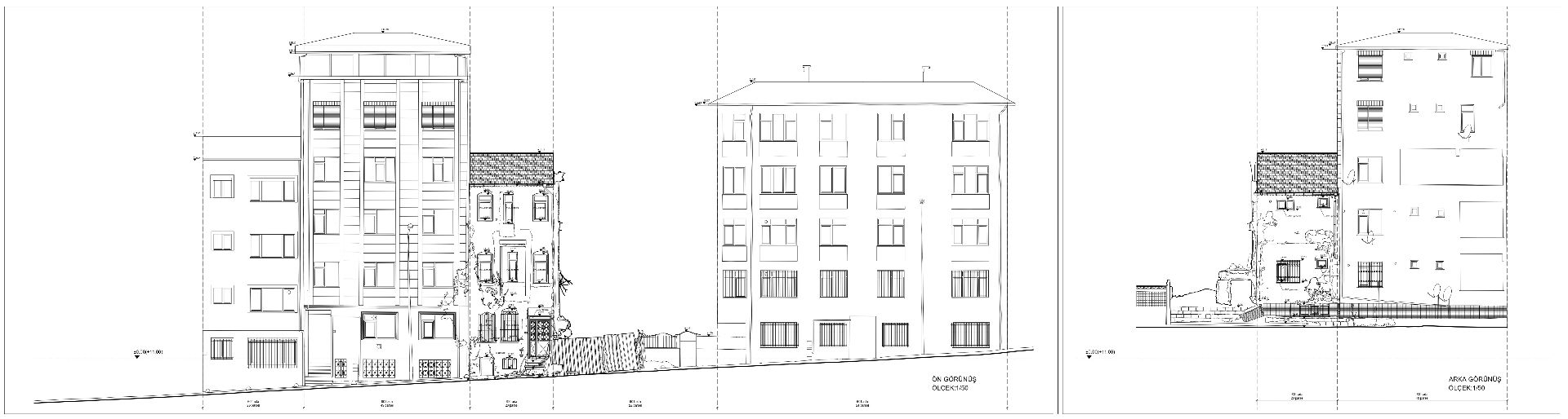
İstanbul’un Üsküdar ilçesinde yer alan tarihi kagir konut, NTU Mimarlık tarafından yürütülen rölöve, restitüsyon ve restorasyon çalışmaları ile yeniden hayat bulmuştur. Projede yapının özgün malzeme ve mimari öğeleri titizlikle korunmuş, zarar görmüş bölümler aslına uygun olarak yenilenmiştir.

Restorasyon sürecinde, yapının tarihi kimliğine zarar vermeden günümüz yaşam koşullarına uyum sağlayacak çözümler geliştirilmiştir. Böylece konut, hem mimari mirasın korunmasına katkı sağlamakta hem de kullanıcılarına tarihsel atmosferle iç içe modern bir yaşam alanı sunmaktadır.